5 bed for Sale
Bridgwater
£440,000Description
- A SPACIOUS PERIOD MODERNISED SEMI-DETACHED HOUSE
- MANY CHARACTER FEATURES
- EXTENSIVE ACCOMMODATION ARRANGED OVER 3 FLOORS
- NEW GAS FIRED CENTRAL HEATING SYSTEM & UPVC DOUBLE & TRIPLE GLAZING
- 5 BEDROOMS, FAMILY BATHROOM AND SEPARATE SHOWER ROOM
- SUPERB LOUNGE WITH FEATURE FIREPLACE & WOODBURNER
- LARGE FITTED KITCHEN & OPEN TO DINING ROOM/LIVING SPACE
- LAUNDRY & UTILITY ROOM, STORE ROOM AND CLOAKROOM
- LARGE ENCLOSED REAR GARDEN WITH GARDEN SHED/WORKSHOP
- EARLY INTERNAL VIEWING ESSENTIAL
A very thoroughly modernised period semi-detached house conveniently located on the southern side of Bridgwater, approximately ¼ mile from the town centre where all amenities and facilities can be found. Local shops are close by, together with service station, supermarket and a regular bus service. For the commuter, Junction 24 of the M5 is a little over 1 mile away allowing easy access to Taunton, Exeter, Bristol and the rest of the country. Bridgwater railway station is about 1mile distant.
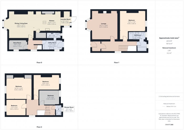
Of brick construction, beneath a tiled felted and insulated roof. The front windows have the benefit of being triple glazed and there is a modern gas fired central heating system with mist radiators being of a style to compliment the period of the property. The well-presented and proportioned accommodation briefly comprises to the ground floor; Entrance Vestibule and Entrance Hall, Lounge with feature fireplace and woodburner, Ground floor Bedroom 5, Bathroom. To the lower ground floor there is a superb Kitchen with island unit and built in appliances, Dining/Living Room, Utility, Store Room and Cloakroom. To the first floor there are 4 Bedrooms, and a Shower Room. The property, which is also presented in excellent decorative order throughout, benefits from a large mature enclosed rear garden and a large Garden Shed/Workshop.
The SOLE AGENTS would recommended parties interest in this property arrange viewing as soon as possible to avoid disappointment.
ACCOMMODATION
GROUND FLOOR
ENTRANCE VESTIBULE Part leaded light door to;
ENTRANCE HALL Staircase to first floor and stairs to the lower ground floor. Double glazed side aspect window with coloured glass. Radiator. Corniced ceiling and ornamental ceiling rose.
LOUNGE 16’7” x 14’11” + bay (5.04m x 4.57m +) Bay UPVC triple glazed window to front. Feature fireplace with ornate surround and woodburner. Ornate ceiling rose and cornice. Radiator. Exposed timber floorboards.
BEDROOM 5 15’ x 11’8” (4.59m x 3.56m) Double glazed rear aspect window. Radiator. Corniced ceiling.
BATHROOM/W.C. Freestanding roll top slipper bath with “ball and claw” feet, shower mixer tap, separate shower cubicle with glazed screen and twin head shower fitting, vanity wash hand basin with cupboards under and low level w.c., heated towel rail/radiator. Spotlights.2 double glazed windows.
LOWER GROUND FLOOR
STORE ROOM 10’6” x 5’8” (3.22m x 1.75m) Double glazed window, radiator.
DINING/LIVING ROOM 14’6” x 14’2” + bay (4.33m x 4.42m +) Built in cupboards to either recess, fitted cupboards and drawer unit. Radiator. Triple glazed deep bay window with fitted seating. Opening through to;
KITCHEN 14’4” x 10’2” + recess (4.37m x 3.09m +) Extensive range of drawer and cupboard units with quartz worktops. Matching wall cupboards. Large island unit with hardwood worktop and ceramic 4 ring and separate 2 ring hobs, rang of drawer and cupboards under. Double bowl glazed. sink unit with cupboards under. Twin built in split level electric ovens. Integrated fridge and freezer. Opening to;
LAUNDRY AREA Worktop with plumbing for washing machine and tumble dryer space. Wall mounted Vaillant gas fired boiler for heating and hot water. UPVC double glazed windows and door to the rear garden
UTILITY ROOM 11’6” x 5’9” (3.52m x 1.76m) Stainless steel sink unit with cupboards under. Wall mounted cupboards, Radiator. Door to rear garden. Door off to;
CLOAKROOM Low level w.c., wash hand basin, fully tiled walls and floor.
FIRST FLOOR
LANDING Double glazed window to side aspect. Access to roof space. Radiator.
BEDROOM 1 14’10” x 12’6” (4.54m x 3.83m) UPVC triple glazed windows to front. Radiator. Built in double wardrobes to either recess.
BEDROOM 2 15’ x 8’7” (4.57m x 2.63m) UPVC double glazed window. Radiator.
BEDROOM 3 11’3” x 9’3” (3.45m x 2.83m) UPVC triple glazed window to front. Radiator. Access to roof space.
BEDROOM 4 11’8” x 8’ (3.56m x 2.44m) UPVC double glazed window to rear. Radiator
SHOWER ROOM Modern suite comprising a corner shoer tray with glazed screen and electric shower unit, combined wash hand basin and w.c., tiled surrounds, heated towel rail/radiator, spotlight, double glazed window.
OUTSIDE To the front of the property there is OFF ROAD PARKING with space for 3 vehicles. Side access with gate to the large rear garden. Large brick patterned impressed concrete patio immediately to the rear of the house. Further areas laid to lawns. Mature shrubs and trees including flowering cherry and apple. Aluminium framed Greenhouse. Timber built Garden Shed/Workshop and adjoining Lean-to Store.
Viewing. By appointment via Charles Dickens Estate Agents
Services Mains electricity, gas, water & drainage.
Energy Rating D (66)
Council Tax Band D. Somerset County Council
Floorplan