2 bed for Sale
Monkton Heathfield, Taunton
Guide Price £197,500Description
- WELL PROPORTIONED TWO DOUBLE BEDROOM END TERRACE HOUSE
- UPVC WINDOWS
- GARDENS FRONT AND REAR
- ECONOMY 7 HEATING
- NO ONWARD CHAIN
- EARLY VIEWING ADVISED
End of terraced property situated in an area of similar houses near the centre of the village of Monkton Heathfield itself approximately four miles from the town of Taunton and seven miles from the town of Bridgwater. The property is also conveniently located for the M5 motorway being equal distance from junctions 24 and 25.
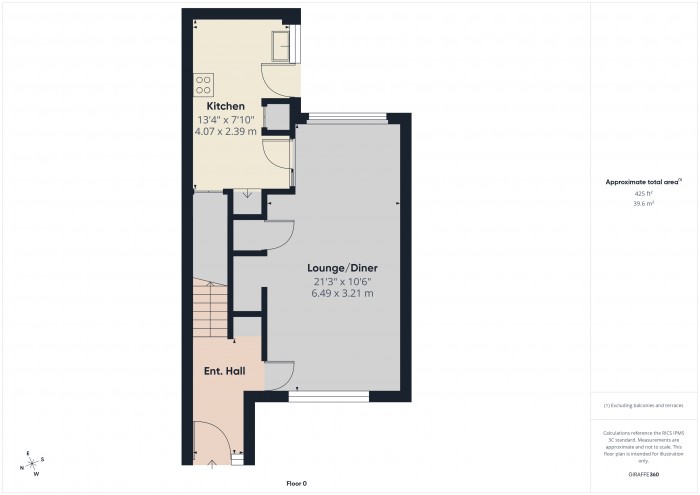
The property is constructed of cavity walling under a pitch, tiled, felted and insulated roof briefly comprises; Entrance Hall, Lounge/Diner, Kitchen whilst to the first floor two Bedrooms and Bathroom. The property benefits from UPVC windows, Economy 7 heating and all floor coverings included in the asking price. Although the property is in need of updating and modernising it would prove to be an ideal first-time buyers property or indeed an investment buyer’s property and as the property comes to the market with no onward chain early viewing is advised. There are gardens to the front and rear of the property.
The village of Monkton Heathfield offers good local amenities including shop, primary school, church and bus service to and from the town centre of Taunton.
ACCOMMODATION
ENTRANCE HALL Stairs to first floor.
LOUNGE/DINER 21’1” x 10’7” max Mock fireplace & surround. Night storage heater. Large understairs storage cupboard. Fitted shelved cupboard.
KITCHEN 13’9” x 8’1” Inset single drainer sink unit with cupboards under. Rolled top working surfaces with further cupboards & drawers under, matching wall cupboards over. Door to outside.
FIRST FLOOR Stairs to landing
LANDING Electric panel heater. Hatch to roof space.
BEDROOM ONE 13’1” x 9’2” Walk in cupboard. Night storage heater. Carpet.
BEDROOM TWO 11’10” x 9’1” average. Carpet..
BATHROOM Panel bath, pedestal wash hand basin, low level WC. Electric shower over bath, curtain & rail.
OUTSIDE To the front of the property which is open plan laid to grass. To the rear of the property there is an enclosed garden, concrete patio area with further garden beyond with pedestrian gate.
Viewing: By appointment with the vendors’ agents Messrs Charles Dickens, who will be pleased to make the necessary arrangements.
Services: Mains electricity, water & drainage.
Tenure: Freehold.
Energy Rating: E (45)
Council Tax Band:B
Broadband & Mobile: Information available at checker.ofcom.org.uk
Floorplan