3 bed for Sale
Bridgwater
£250,000Description
- A VERY WELL PRESENTED MODERN 3 BEDROOM SEMI DETACHED HOUSE
- POPULAR ‘KINGS DOWN’ DEVELOPMENT
- THREE BEDROOMS WITH EN-SUITE SHOWER ROOM TO MASTER
- GOOD SIZE LOUNGE /DINER & MODERN FITTED KITCHEN WITH INTEGRATED APPLIANCES
- ENTRANCE HALL & CLOAKROOM
- LOW MAINTENANCE ENCLOSED GARDEN
- DRIVEWAY FOR TWO CARS
- IDEAL FIRST TIME OR FAMILY HOME
An attractive and immaculately presented modern three-bedroom semi-detached family house situated within the popular ‘Kinds Down’ development, approximately 1.5 miles from the town centre with its numerous facilities and amenities. Shops including a convenience store, and primary school are within close proximity and for the commuter, easy access to the M5 via Junction 23 at Puriton. The property is constructed of cavity walling with principally rendered elevations beneath a pitched, tiled, felted and insulated roof.
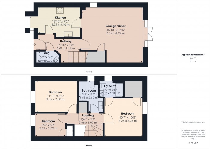
The accommodation is well proportioned and briefly comprises to the Ground Floor; Entrance Hall, Cloakroom, fitted Kitchen, Lounge/Diner, whilst to the First Floor there is a Master Bedroom with En-Suite Shower Room, 2 further Bedrooms and Family Bathroom. The property benefits from gas fired central heating, UPVC double glazed windows throughout, high standard of decoration and all floor coverings included in the asking price. Outside the property has a driveway for off road parking for two cars. To the rear there is an enclosed low maintenance garden and shed. To conclude this combined with the overall nature and quality of the accommodation provided make it an ideal family home.
ACCOMMODATION
ENTRANCE HALL Double glazed door. Stairs to first floor. Radiator. Recessed spotlights.
LOUNGE/ DINER 16’10” x 15’6” (5.14m x 4.74m) Radiator. Double glazed window and French doors to the rear garden. TV aerial points. Double doors to;
KITCHEN 13’10” x 7’2” (4.23m x 2.19m) Extensive range of modern matching floor and wall mounted cupboard units with 1¼ bowl stainless steel sink and drainer unit inset into working surfaces. Integrated split level electric oven and grill with four ring hob inset into worktop. Stainless steel extractor hood with lighting above. Plumbing for a dishwasher. Wall mounted cupboards. Radiator. Spotlights. Double glazed bay window to front. Radiator.
CLOACK ROOM: White suite comprising close coupled WC, pedestal wash hand basin with tiled splashback. Radiator
LANDING Radiator. Roof access to part roof space. Double glazed window. Double cupboard with hot water tank.
MASTER BEDROOM 10’7” x 10’8” (3.25m x 3.26m) Double glazed window to front. Radiator. Thermostat control. Door to:
EN-SUITE SHOWER ROOM Suite comprising close coupled WC and pedestal wash hand basin with tiled splashback. Fully tiled walk-in shower cubicle with glazed screen. Extractor unit. Heated towel rail/radiator.
BEDROOM 2 11’10” x 8’6’’ (3.62m x 2.60m) Radiator.
BEDROOM 3 8’4”x 6’7” (2.55m x 2.02m) Radiator.
BATHROOM White suite comprising close coupled WC, pedestal wash hand basin with tiled splashback. Panel sided bath unit with thermostatic shower attachment and fully tiled surround. Extractor fan.
OUTSIDE Driveway providing off road parking and leading to the attached Side personal gate to garden. To the front of the property there is a small area and paved path to main entrance door. Fully enclosed rear garden with paved patio and lawn. Garden shed.
Viewing By appointment with Charles Dickens Estate Agents, tel01278 445266 or emailsales@charlesdickensestateagents.com who will be pleased to make the necessary arrangements.
Services Mains electricity, water, gas & drainage.
Council Tax Band C
Energy Rating B 83
Broadband & Mobile Information at checker.ofcom.org.co.uk
Floorplan


