or call us on 01278445266
2 bed for Sale
Olive Way, Bridgwater
£209,950Description
- NO ONWARD CHAIN
- TWO BEDROOMS
- REAR ASPECT LOUNGE
- FAMILY BATHROOM & WC
- SOUTH EAST FACING REAR GARDEN
- GARAGE & PARKING
- GAS CENTRAL HEATING
- EASY ACCESS TO TOWN CENTRE, LOCAL AMENITIES & SCHOOLS
- GOOD ACCESS TO M5
- EPC RATING: C
Available with NO ONWARD CHAIN is this well presented two-bedroom home. Situated within a modern development, there is easy access to local amenities including a Co-Op and the local primary school, both within walking distance.
Internally there is a spacious Entrance Hall with stairs rising to the first floor and access to the Kitchen, Cloakroom and rear aspect Lounge that has French doors into the rear garden and access to a storage cupboard under the stairs.
To the first floor are the two Bedrooms and the Bathroom with shower over the bath, WC and wash basin.
Outside there is a small garden to the front and a rear garden laid to patio and an area of lawn.
The property is well presented, fully double glazed, is warmed by a gas central heating system and comes with a garage and parking space. The garage and parking space can be found just a very short walk from the property, located under a nearby coach house.
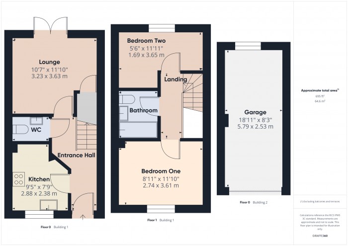
GROUND FLOOR
ENTRANCE HALL With stairs to the first floor and doors to the Lounge, Cloakroom and Kitchen.
LOUNGE 10'7" x 11'10" (3.23m x 3.63). Access to a storage cupboard under the stairs and with French doors into the rear garden.
KITCHEN 9'5" x 7'9" (2.88m x 2.38m). Double glazed window to the front aspect, space for fridge/freezer and washing machine, oven, gas hob and cooker hood. Boiler to cupboard.
FIRST FLOOR
BEDROOM ONE 8'11" x 11'10" (2.74m x 3.61m max). Double glazed window to the front aspect and radiator.
BEDROOM TWO 5'6" x 11'11" (1.69m x 3.65m). Double glazed window to the rear aspect and radiator.
BATHROOM Bath with shower over, WC, wash basin and extractor fan.
OUTSIDE To the front is a small area of lawn and to the rear is a south east facing garden, fully enclosed and laid to patio and lawn. The garage and parking space can be found just a very short walk from the property, located under a nearby coach house.
Viewing: By appointment with the vendors’ agents Messrs Charles Dickens, who will be pleased to make the necessary arrangements.
Services: Mains gas, electricity, water & drainage.
Council Tax Band: B
EPC Rating: C 80
Broadband & Mobile Information available at checker.ofcom.org.co.uk